神埼市神埼町城原の店舗
価格
1,500
万円
種別
店舗
面積
145.25㎡
坪数
43.93坪
住所
佐賀県神埼市神埼町城原
交通
神埼駅
徒歩31分
外観
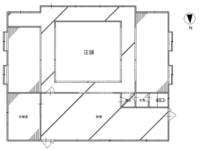
間取り
外観